실제 공간에 배치해 볼 수 있어요!

모던하고 빈티지한 싱글남의 10평 대 공간활용 끝판왕

조회 9,272

주거형태 : 빌라 평수 : 10평대

혼자 산지 어느덧 2년이 되어 가는 30살 남자예요. 처음엔 자취방에 대한 로망으로 방을 하나씩 채워가기 시작 했어요. 뚜렷한 컨셉이나 기획 없이 제가 좋아하는 것들로 꾸미다 보니 조금 어수선한 느낌이 있지만, 누구나 그렇듯 처음엔 그렇잖아요? 경험을 발판 삼아 좀 더 확실한 컨셉으로 꾸며 가고 싶은 하는 저는, 아직도 현재진행형이에요.

Contents Stories

모던&빈티지
인테리어

나의 라이프스타일을 소개합니다

혼자 산지 2년 되어 가는 롯데하이마트 서화 고객님이 직접 소개합니다.

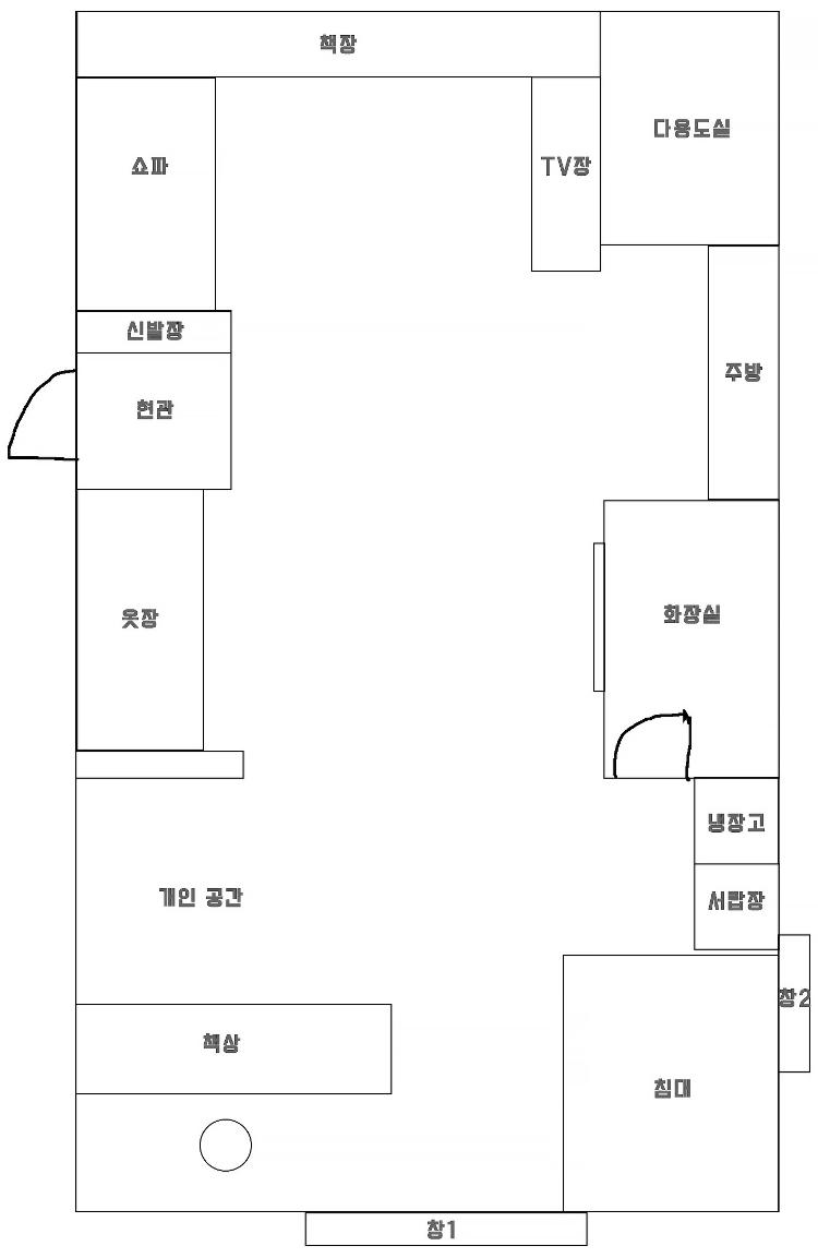
저희 집은 빌라 10평입니다. 저희 집 구조에요. 작지만 알차게 공간활용하고 있어요~
실제 공간에 배치해 볼 수 있어요!
공간 활용으로 알찬 거실
원룸 같은 1.5룸이라 뚜렷한 구분은 없지만 거실로 쓰고 있는 공간이에요.. 집이 꼭대기 층이라 천장이 비스듬해서 잘못하면 버릴 수밖에 없는 공간에 수납장을 세워서 공간을 버리지 않고 거실로 활용하고 있어요.
실제 공간에 배치해 볼 수 있어요!
침실 - (작업 공간 1)
포인트 벽지와 무난하게 어울릴 수 있는 무채색으로 선택했어요. 소품으로 제가 평소에 좋아하는 포스터를 사용했어요. 차분한 색감을 맞추기 위해 침대는 화이트&그레이 톤으로 구성하였고, 밝은 작업 공간과는 다르게 은은한 조명으로 선택했어요..
실제 공간에 배치해 볼 수 있어요!
침실 - (작업 공간 2)
사실 이 공간이 저의 최애 공간이에요. 많은 생각을 함께 한 장소이죠. 제가 좋아하는 진한 우드 색상 책상과, 화이트 컬러의 의자, 러그 그리고 감싸주는 느낌의 조명으로 아늑함을 조성했어요.
실제 공간에 배치해 볼 수 있어요!
침실 - (서랍장)
남는 스페이스 공간이었는데, 무엇으로 채울지 고민하다가 서랍이 들어가면 딱 맞을 것 같아서, 진한 우드 색과 서랍과 육각 스트랩 거울, 조화를 배치하여 방의 전체적인 분위기와 무드를 맞췄어요.
실제 공간에 배치해 볼 수 있어요!
이곳은 게임도 하고 기타 영상작업도 하는 공간이에요. 같은 침실 공간이지만 가구배치를 통해서 공간을 최대한 효율적으로 쓰려고 했어요. 네이비 컬러의 벽지에 눈에 잘 띄게 화이트 LED 시계를 설치했어요.
실제 공간에 배치해 볼 수 있어요!
뷰가 멋진 테라스
저희 집의 메인은 아니지만 메인 같은 공간? 공간이라고 할 수 있겠네요. 이곳에서 친구들과 바비큐 파티하기에도 좋고, 혼자서 노트북으로 영화 보면서 간 맥하기에도 좋은 장소예요. 테라스 첫 번째 사진은 새벽에 일몰 때 찍은 사진인데 사진에 경치가 다 담기진 않았지만, 일출, 일몰 시 뷰가 정말 멋있어요.
실제 공간에 배치해 볼 수 있어요!
아직도 미완성인 인테리어지만 천천히 생각하면 계속 채워나가는 중이에요.
실제 공간에 배치해 볼 수 있어요!
인테리어를 처음 시도해보는 거라 한 번에 하려고 하니 어려웠는데, 천천히 생각하면서 꾸준히 채워가니 어느 정도 그럴듯한 인테리어가 나오고 있는 것 같네요. 지금까지 저희 집 인테리어를 소개해드렸습니다.

BY 서화x****

※ 이미지 내 배치된 상품과 태그로 연결된 상품은 다를 수 있습니다.

사진 속 모든 상품

빌라 좋아요 베스트

    댓글 작성 안내

    • 개인정보 관련 피해 방지를 위해 주민번호, 연락처 등 개인정보 기입은 삼가주시기 바랍니다.
    • 해당 서비스와 관계없는 글, 사진, 광고성, 욕설, 도배 등 약관 및 법률에 위반되는 글은 예고없이 삭제 될 수 있습니다.
    • 저작권 등 다른 사람의 권리를 침해하거나 명예를 훼손하는 게시글은 이용약관 및 관련법률에 의해 제재를 받으실 수 있습니다.

    나의 단골매장을 등록하면
    이벤트와 혜택이 가득!

    • 가장 먼저 만나는 단골매장의 할인 혜택
    • 스마트픽으로 구매 당일 픽업
    매장 둘러보기

    모바일에서만 가능한 서비스입니다.

    내용

    L.POINT 장애 안내

    주소찾기

    건물번호/번지/건물명을 붙여 검색하면 주소찾기가 쉽습니다.

    • 도로명 + 건물번호 (예: 삼성로 156)
    • 동/읍/면/리 + 번지 (예: 대치동 509)
    • 건물명, 아파트명 (예: 하이마트사옥)
    Lotte mall 레이어 닫기

    댓글 신고하기

    게시글의 취지와 어긋나 공공성을 해치는 글을 신고하여 주십시오