안녕하세요. 집돌이, 집순이 초등학생 아이 둘을 키우며 일도 공부도 하는 바쁜 워킹맘입니다.
코로나 이후 온라인 수업, 재택근무 등으로 집에서 많은 시간을 보내다 보니 답답한 마음에 충동적으로 같은 단지, 조금 넓은 평수로 이사를 결정하게 되었습니다.
그런데 일주일 만에 덜컥 계약해버린 집이 생각보다 상태가 별로 좋지 않아서 어쩔 수 없이 올 수리하게 되었지요.
코로나 이후 온라인 수업, 재택근무 등으로 집에서 많은 시간을 보내다 보니 답답한 마음에 충동적으로 같은 단지, 조금 넓은 평수로 이사를 결정하게 되었습니다.
그런데 일주일 만에 덜컥 계약해버린 집이 생각보다 상태가 별로 좋지 않아서 어쩔 수 없이 올 수리하게 되었지요.
Contents Stories
내추럴&우드
인테리어
나의 라이프스타일을 소개합니다
집돌이, 집순이 초등학생 아이 둘을 키우고 있는 워킹맘 롯데하이마트 나니하니 고객님이 직접 소개합니다.
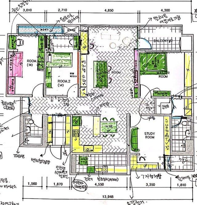
이사하게 된 집 평면도입니다. 10년쯤 된 아주 평범한 40평대 아파트입니다.
Before
이사하게 된 집의 공사전 모습입니다. 거실과 방 3(안방 제외) 개가 모두 확장되어 있었는데, 확장한 곳이 모두 난해한 상황이었습니다.
애매하게 벽이 남아 있고, 벽장에는 곰팡이가 피어 있고, 갈매기 몰딩, 아트월도 거슬렸죠. 도대체 이 집을 어떻게 하면 우리 가족이 즐겁게 지낼 수 있는 곳으로 바꿀 수 있을까? 고민하고 또 고민했습니다.
애매하게 벽이 남아 있고, 벽장에는 곰팡이가 피어 있고, 갈매기 몰딩, 아트월도 거슬렸죠. 도대체 이 집을 어떻게 하면 우리 가족이 즐겁게 지낼 수 있는 곳으로 바꿀 수 있을까? 고민하고 또 고민했습니다.
처음에는 인터넷에서 도면을 찾아 현재 가지고 있는 가구들을 그려 넣고 평소의 생활 동선을 체크하면서 각 공간을 어떻게 구성하면 좋을지 고민했습니다.
그리고 인터넷에서 멋진 인테리어 사진들을 보고 내가 원하는 모습을 하나씩 직접 그리기 했죠.
그리고 인터넷에서 멋진 인테리어 사진들을 보고 내가 원하는 모습을 하나씩 직접 그리기 했죠.
거실에 특히 신경을 많이 썼습니다. 저희는 거실에 TV를 두는 대신 큰 테이블을 두고 아이들 공부방 겸 온 가족의 휴식공간으로 쓰고 있어요. 이사한 집도 그런 구성으로 꾸미고 싶었습니다. 또 이제 사춘기에 접어드는 아들이 게임을 너무 좋아해서 약간의 통제와 감시를 위해서 거실에서만 게임을 하도록 하고 있습니다.
그리고 저도 혼자 방에 앉아 있으면 공부가 잘 안되고 카페에서 작업을 많이 하는데 코로나로 집에만 보내는 아이들이 자연스럽게 공부할 수 있는 스터디 카페 같은 분위기를 만들고 싶었어요. 아이들이 그래서 거실에서 아이들이 편안하게 책도 읽고 공부도 하고 쉴 수 있는 넓은 벤치형 소파와 책상을 직접 디자인해 보았습니다.
그리고 저도 혼자 방에 앉아 있으면 공부가 잘 안되고 카페에서 작업을 많이 하는데 코로나로 집에만 보내는 아이들이 자연스럽게 공부할 수 있는 스터디 카페 같은 분위기를 만들고 싶었어요. 아이들이 그래서 거실에서 아이들이 편안하게 책도 읽고 공부도 하고 쉴 수 있는 넓은 벤치형 소파와 책상을 직접 디자인해 보았습니다.
거실의 서재화
한쪽 구석에는 핸드폰, 아이들 학습기, 노트북 등을 충전하고 인터넷 공유기를 놓을 수 있는 충전 스테이션을 두고 벤치 아래는 서랍으로 구성해서 수납을 넉넉하게 하는 아이디어를 생각해 봤지요.
집안 구석구석 이런 아이디어들이 가득하다 보니 실제 인테리어 업체들을 찾아가 상담할 때 사실 좀 부담스러워하시더라고요 ^^;;; 그러다가 운이 좋게 마음에 맞는 인테리어 업체를 만나서 저의 아이디어들을 현실화할 수 있게 되었습니다.
집안 구석구석 이런 아이디어들이 가득하다 보니 실제 인테리어 업체들을 찾아가 상담할 때 사실 좀 부담스러워하시더라고요 ^^;;; 그러다가 운이 좋게 마음에 맞는 인테리어 업체를 만나서 저의 아이디어들을 현실화할 수 있게 되었습니다.
결국 현실화된 모습은 상상보다 더 멋지게 완성되었습니다!
짐이 다 들어오고 난 뒤의 거실은 이렇게 따뜻한 느낌입니다.
이 집에서 제일 아쉬운 점을 꼽으라 하면 바로 싱크대 상판 색상이에요.
아무래도 어두운 색상의 상판이다 보니 제가 가진 밝은 색의 아이템들이 잘 어우러지지 않고 무얼 올려놓아도 복잡해 보이고 지저분해 보이는 느낌이 들더라고요.
그래도 요리할 때 상판이 물들거나 그러지 않아서 그 점으로 위로받고 있어요.
아무래도 어두운 색상의 상판이다 보니 제가 가진 밝은 색의 아이템들이 잘 어우러지지 않고 무얼 올려놓아도 복잡해 보이고 지저분해 보이는 느낌이 들더라고요.
그래도 요리할 때 상판이 물들거나 그러지 않아서 그 점으로 위로받고 있어요.
벤치형 소파는 아이들이 편안하게 책도 읽고 공부도 하는 공간으로 활용하고 있고
넓은 테이블은 손님들이 오면 파티 테이블로 변신합니다.
반대쪽은 낮은 책장과 오디오로 편안한 느낌을 주고 베란다로 가는 문은 터치 도어로 가렸습니다.
전망이 아름다운 서재
그 다음으로 신경을 쓴 공간은 서재입니다. 거실은 아이들이 주로 공부하는 공간이라면 서재는 남편과 제가 일도 하고 공부도 하는 공간이에요.
거실에서 쫓겨난 TV와 소파도 자리 잡고 있어서 미디어 룸의 기능도 합니다. 확장했지만 내력벽이 조금 남아 있고, 창고가 연결되어 있어 아주 애매한 구조였어요.
그래서 창고로 가는 문은 슬라이딩 도어로 가리고 책과 학용품 등등을 수납하고 TV를 두는 월플렉스를 디자인해 보았지요.
그래서 창고로 가는 문은 슬라이딩 도어로 가리고 책과 학용품 등등을 수납하고 TV를 두는 월플렉스를 디자인해 보았지요.
완성된 서재는 이런 모습입니다. 슬라이딩 문 뒤에는 창고가 숨어 있습니다.
이 방의 매력은 바로 창문 밖으로 산이 멋지게 보인다는 것입니다. 책상에 앉아서 작업할 때마다 감탄하고 있습니다.
며칠 전 눈 내린 날에는 이런 설경도 서재 창문으로 볼 수 있었답니다!
화장하는 시간이 행복한 파우더룸
저의 아이디어는 여기서 끝나지 않았습니다. 안방과 욕실 사이의 애매한 파우더 룸에 수납도 짱짱한 나만의 예쁜 화장대를 갖고 싶어서 화장대 디자인도 해보았어요.
이렇게 손으로 그려본 저의 디자인을 디자이너가 업그레이드 시켜줬구요.
화장하는 시간이 행복한 예쁜 파우더룸이에요. 넓은 수납공간에 가방 등을 보관하고 화장품 위에 먼지 쌓이는 것이 싫어서 화장품, 드라이기 등은 모두 큰 서랍에 넣어서 보관합니다.
화장할 때는 서랍을 열어서 사용하고 평소에는 휴지 케이스만 깔 맞춤으로 올려두고 깔끔하게 쓰고 있어요.
화장할 때는 서랍을 열어서 사용하고 평소에는 휴지 케이스만 깔 맞춤으로 올려두고 깔끔하게 쓰고 있어요.
수납과 미를 동시에 해결한 욕실
안방 욕실도 엄청 고민을 많이 한 공간이에요. 청소도구 보관하는 하부장은 두고 싶은데 수납공간 부족해지는 것은 싫더라고요.
오랜 고민 끝에 청소도구를 보관할 수 있는 여닫이장과 휴지와 수건을 보관할 수 있는 선반으로 하부장을 구성해 봤어요. 타일도 논현동 타일매장을 다니며 직접 골랐구요.
선반에는 휴지와 수건을 넉넉하게 보관하고 깔끔하게 꾸미고 있어요. 탑볼 세면대 관리하기 힘들다고 해서 걱정했는데 어두운 인조대리석으로 마감하니 얼룩도 눈에 안 띄고 물건 올려놓기도 편해서 좋아요.
욕실 바닥은 매트 깔고 건식으로 쓰고 있고, 회색 타일은 예쁘기도 하지만, 떨어진 머리카락이 잘 안 보이는 엄청난 장점이 있어서 만족하고 있습니다.
오랜 고민 끝에 청소도구를 보관할 수 있는 여닫이장과 휴지와 수건을 보관할 수 있는 선반으로 하부장을 구성해 봤어요. 타일도 논현동 타일매장을 다니며 직접 골랐구요.
선반에는 휴지와 수건을 넉넉하게 보관하고 깔끔하게 꾸미고 있어요. 탑볼 세면대 관리하기 힘들다고 해서 걱정했는데 어두운 인조대리석으로 마감하니 얼룩도 눈에 안 띄고 물건 올려놓기도 편해서 좋아요.
욕실 바닥은 매트 깔고 건식으로 쓰고 있고, 회색 타일은 예쁘기도 하지만, 떨어진 머리카락이 잘 안 보이는 엄청난 장점이 있어서 만족하고 있습니다.
거실 욕실은 욕조의 물튐을 막기 위해 유리 가림막을 설치하고 포세린 타일로 깔끔하게 마감했습니다.
다른 공간들도 하나하나 많은 고민과 아이디어들이 숨어 있습니다.
다른 공간들도 하나하나 많은 고민과 아이디어들이 숨어 있습니다.
분위기를 잡은 현관
잡동사니를 보관하고 편안히 신발을 신을 수 있는 벤치장과 차키 등 바로 챙겨나갈 물건들을 수납할 테이블을 마련하고 포스 있는 중문으로 분위기를 잡은 현관
아이방
남아있는 내력벽을 가벽으로 연장해서 공간을 나누고 (가벽 반대쪽에는 책장과 책상이 있습니다) 조명과 무지주 선반, 침대 시트과 커튼으로 아늑한 분위기를 연출한 아이방
복도장
콘센트를 매립하여 청소기를 보관할 수 있는 복도장
주방
주방은 애쉬베이지의 차분한 색상으로 마감하고 아일랜드의 넓은 서랍으로 넉넉한 수납공간을 확보하고
주방 벽에는 함석판을 사서 도배 전에 실리콘으로 붙여 달라고 요청하고 그 후에 도배를 해서 자석벽을 만들었습니다. 세계의 미술관에서 모은 예술 자석들을 붙여 놓고 메모도 붙이는 용도로 써요.
주방과 연결되는 보조주방은 전망 좋은 창가에 보조 싱크를 두고, 냄새나 소리가 나는 소형 가전들을 수납하고 이케아 데크타일을 깔아서 잘 활용하고 있습니다. 반대쪽에는 세탁기와 건조기를 두었고요.
나만의 홈짐 베란다와 미디어룸
베란다 나가는 문은 터치 도어로 깔끔하게 마감하고
베란다엔 체육관용 매트를 깔고 로잉머신을 구입해서 나만의 홈짐으로 꾸몄어요. 퇴근 후에 블루투스 스피커로 신나는 음악을 틀고 잠깐씩 운동하는 시간이 참 행복하답니다!
베란다에서 운동하기 좀 추운 날에는 서재겸 미디어룸에 요가매트를 깔고 유튜브에서 홈트를 틀어놓고 실내운동을 합니다.
아늑한 안방
확장을 하지 않아 가장 작은 안방은 깔 맞춤한 이불 커버와 커튼으로 깔끔하게 꾸몄습니다.
침대 맞은편은 붙박이 옷장이 있는 휴식공간으로 마무리했습니다. 붙박이장 옆 아치형 문은 예쁜 파우더룸과 욕실로 연결되어 있답니다.
구석구석 제가 고민한 아이디어들이 현실화되는 과정이 재미있었고, 결과물도 마음에 들어 행복합니다.
구석구석 제가 고민한 아이디어들이 현실화되는 과정이 재미있었고, 결과물도 마음에 들어 행복합니다.
BY 나니하니namh****
사진 속 모든 상품
함께보면 좋은 상품